Рубленная баня "Деревенская"

Добавить к сравнению
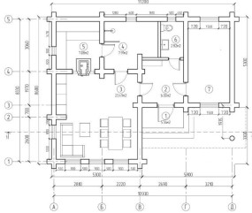
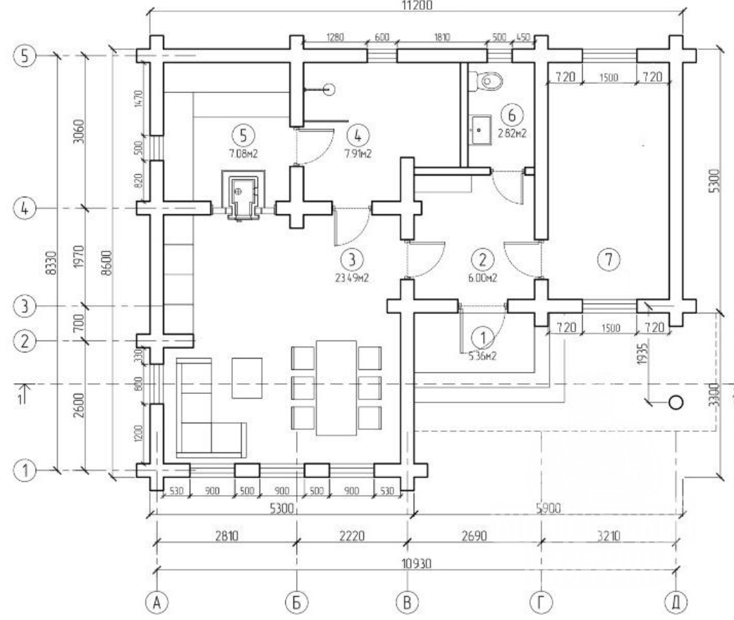
План этажа
Поделиться проектом
Внешние размеры
8x11 + терраса
Общая площадь
65 м2
Этажность
1 этаж
Диаметр бревна
240—
300
мм
Цена:
2 750 000 руб.
Рубленная деревянная баня на основе сруба ручной рубки в «чашу». Материал стен: Ель,сосна заготовленная в экологически чистом районе на севере Вологодской области.

В стоимость рубленной бани с монтажными работами на Вашем участке "под усадку" входит:

Свяжитесь с нами через формы обратной связи на сайте или по телефону (Моб.,Telegram, MAX) +7(921)828-10-19 для консультации специалиста, получения подробной сметы на строительство, или расчета индивидуального проекта.