Рубленная баня "Руза"

Добавить к сравнению
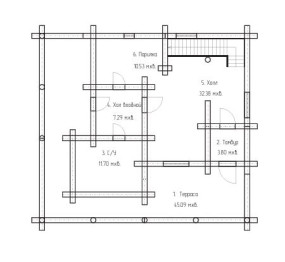
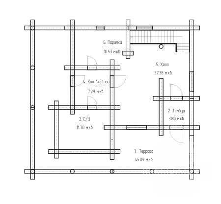
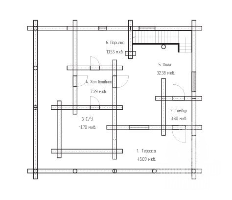
План 1-го этажа
План 2-го этажа
Поделиться проектом
Внешние размеры
12x11 м
Общая площадь
200 м2
Этажность
2 этажа
Диаметр бревна
240—
300
мм
Цена:
4 900 000 руб.
Рубленная баня  на основе сруба ручной рубки в «чашу» предназначенная для круглогодичного проживания.  Материал стен: Ель, сосна заготовленная в экологически чистом районе на севере Вологодской области.

В стоимость рубленного дома с монтажными работами на Вашем участке "под усадку" входит:

Данный проект может быть изменен в соответствии с вашими пожеланиями и потребностями:

  • Размеры дома (как в большую так и в меньшую сторону)
  • Положение и размеры окон и дверей
  • Планировка размеры и количество комнат
  • Высота потолка
  • Диаметр бревна

Свяжитесь с нами через формы обратной связи на сайте или по телефону (Моб.,Telegram, Max) +7(921)828-10-19 для консультации специалиста, получения подробной сметы на строительство, или расчета индивидуального проекта.